Living with Your Ghost
Home of a Departed Companion’s Shadow
Living with Your Ghost Home of a Departed Companion’s Shadow




Location Amsterdam, Netherlands
Collaborator Yifan Shen
Humans are by nature social beings, we seek out companionship. We form bonds and attachments with people we hold dear, the spaces we share together are the stage sets
for the drama of everyday life. So what happens when one loses their companion? How can the interplay of architectural elements and daylight produce shadow dramas that
narrate moments of love, loss, and the meaning of companionship?
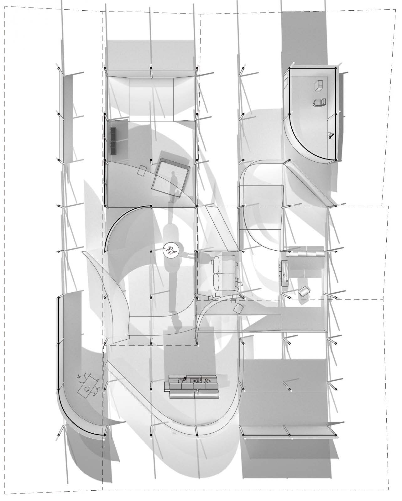
An effigy of the departed companion is placed in the center of a 100’ x 70’ column grid field. Canvases that circulate around the effigy are suspended at different angles on the grid. When the sun hits the statue at various times of day, the shadow will be casted onto the semi-translucent surfaces, allowing the silhouette of the occupant’s departed companion to materialize.
The architecture of the home is extended as a plot device for shadow drama. Each frame allows for the shadow to engage in the banal everyday life of the interior. As the sun moves and the shadow jumps into the next frame, it also becomes the instigator for the occupant to move onto the next activity of the day.
The home itself becomes a character, an emotional support for our hypothetical protagonist who is left behind, who is working through their grief and acceptance. As time goes on, the canvas begins to loosen, the silhouette of their departed companion also begins to fade away, and the effigy eventually reveals itself behind the curtains.
An effigy of the departed companion is placed in the center of a 100’ x 70’ column grid field. Canvases that circulate around the effigy are suspended at different angles on the grid. When the sun hits the statue at various times of day, the shadow will be casted onto the semi-translucent surfaces, allowing the silhouette of the occupant’s departed companion to materialize.
The architecture of the home is extended as a plot device for shadow drama. Each frame allows for the shadow to engage in the banal everyday life of the interior. As the sun moves and the shadow jumps into the next frame, it also becomes the instigator for the occupant to move onto the next activity of the day.
The home itself becomes a character, an emotional support for our hypothetical protagonist who is left behind, who is working through their grief and acceptance. As time goes on, the canvas begins to loosen, the silhouette of their departed companion also begins to fade away, and the effigy eventually reveals itself behind the curtains.






© 2023 Tsz Man Nicholas Chung / all rights reserved